Quadrilocale in vendita

Manfredonia, Via Giovanni da Verrazzano
Informazioni in agenzia
4 locali 4 locali
110 Mq 110 Mq
1 bagno 1 bagno

Quadrilocale in vendita

Manfredonia, Via Giovanni da Verrazzano

Descrizione annuncio

Siete alla ricerca del connubio perfetto tra residenzialità e ampi spazi esterni ?! Questa allora è la soluzione ideale per voi!!!

Ci troviamo in Via Giovanni da Verrazzano, in zona comparti, ma nella parte più adiacente al centro cittadino, dunque comodamente raggiungibile.

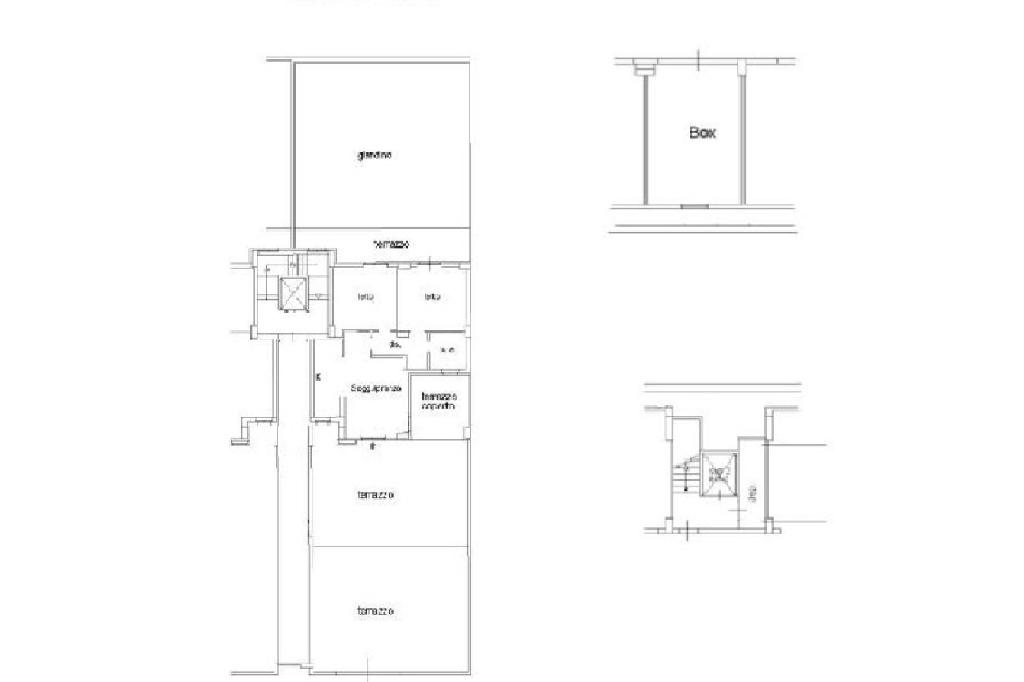
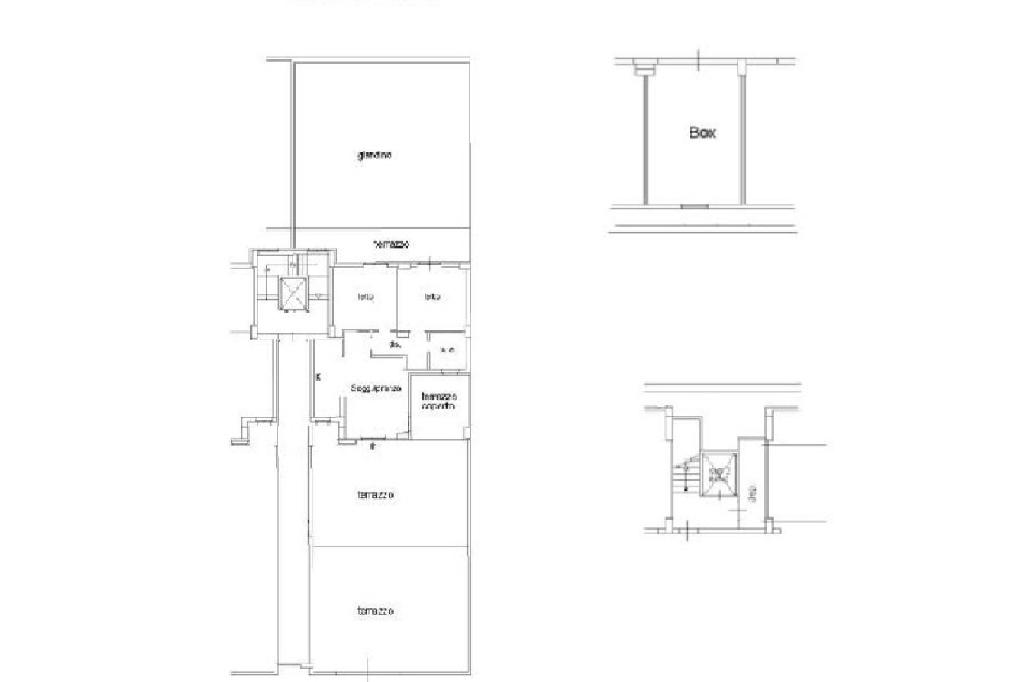
La soluzione si colloca al pianoterra, e conta una superficie di 110 mq, all'interno dei quali abbiamo un ampio openspace con angolo cottura, due camere, di cui una matrimoniale e una singola e il bagno.

L'unità gode di ingresso indipendente con accesso diretto a tutta la zona esterna di esclusiva proprietà.

Altra nota importante è la presenza di doppia corte esterna pavimentata, di complessivi 280 mq, oltre che una veranda a livello con elegante pergolato in legno all'interno del quale vi è una comoda zona lavanderia con raffinata copertura in muretto a secco.

L'immobile è di recentissima costruzione, la data di fine lavori risale infatti al 2014, dunque anche le condizioni dell'impiantistica generale sono ottimali, con fornitura di Gas Metano, impianto di riscaldamento e dispositivi di climatizzazione fan coil.

Ma non è finita qui, infatti questa soluzione può vantare di ulteriori due pertinenze: comodo box auto e piccolo deposito di proprietà.

La soluzione è al momento occupata dai proprietari.

Siamo a vostra completa disposizione per maggiori informazioni e/o per fissare un appuntamento.
Qualora desideriate ottenere informazioni per una eventuale richiesta di mutuo, potrete usufruire della consulenza GRATUITA di un esperto Kiron, società partner di mediazione creditizia.
Seguiteci sulle nostre pagine Facebook 'Agenzia Tecnorete Studio San Michele' e Instagram 'tecnorete_manfredonia' per rimanere sempre aggiornati.

Mostra tutto

Nelle vicinanze

Trasporto pubblico Trasporto pubblico
Manfredonia
Manfredonia
1,0 Km
Siponto
Siponto
1,3 Km
Marino Bus Stop
Marino Bus Stop
1,5 Km
Manfredonia Ovest
Manfredonia Ovest
2,6 Km
Scuole Scuole
Istituto Comprensivo "Don Milani - Maiorano"
700 m
Istituto Comprensivo "Perotto - Orsini"
930 m
Liceo Scientifico Galileo Galilei
940 m
Scuola Elementare Croce
1,3 Km
Istituto Magistrale A. G. Roncalli
1,7 Km
Farmacia Farmacia
Serratì dr. Eugenio
920 m
Manzo dr. Michele
920 m
Querques dr.ssa Maria Pia
1,2 Km
Moderna
1,7 Km
Prencipe dr. Raffaele
2,7 Km
Ospedali Ospedali
Ospedale San Camillo De Lellis
2,1 Km
Pronto Soccordo Ospedale San Camillo De Lellis
2,1 Km
Supermercati Supermercati
EuroSpin
180 m
MD
700 m
GranRisparmio
810 m
Supermercati
880 m
DiMeglio
940 m
Negozi Negozi
Panificio Rignanese P. & Perla M.
640 m
G. & G.
720 m
Panificio San Pio
870 m
RisparmioCasa
870 m
il Forno
1,0 Km
Bar Bar
Bar Impero
1,5 Km
flamingo
1,5 Km
Ristoranti Ristoranti
Trattoria Pizzeria Regina
1,5 Km
Ristorante Crysalis
1,5 Km
Pizzeria del Largo
1,6 Km
Il Baracchio
1,7 Km
Calafuria
1,9 Km
Mostra tutto

Caratteristiche

Rif.:
60837959
Piano:
Terra di 3
Totale piani:
3
Box:
1
Camere da letto:
2
Arredamento:
Assente
Mostra tutto
Prezzo Prezzo
Informazioni in agenzia
Spese annue Spese annue
€ 400
Proponi il tuo prezzoProponi il tuo prezzo

Classe Energetica

G
G
G
G
G
G
G
G
G
Anno di costruzione:
2014
Riscaldamento:
Autonomo
Tipo impianto:
A radiatori
Tipo alimentazione:
Metano

Ti interessa visionare l'immobile?

Fissa un appuntamento  Fissa un appuntamento

Richiedi informazioni

Clicca su Leggi per aprire l'informativa
* Questi campi sono obbligatori
Affiliato
Studio San Michele Srl
Via Tribuna, 220 71043 Manfredonia (FG)

Il nostro staff


  • Michele Prencipe
    Affiliato

  • Maria Pia Ognissanti
    Coordinatrice

  • Niko Gatta
    Collaboratore

  • Matteo Sportelli
    Collaboratore

  • Antonio Sportelli
    Collaboratore

  • Federica Tavano
    Coordinatrice
Via Tribuna, 220 71043 Manfredonia (FG)
Zona: Manfredonia-Monticchio
Mostra su mappa
Orari: mattina 09.00-13.00 pomeriggio16.00-20.30
Affiliato
Studio San Michele Srl
Via Tribuna, 220 71043 Manfredonia (FG)

2025 Tecnocasa Franchising S.p.A. - P. IVA 08365160152 - Via Monte Bianco 60/A 20089 Rozzano (MI). Ogni agenzia ha un proprio titolare ed è autonoma. Privacy policy | Policy utilizzo | Cookie policy